затвори
 - 
English
 - 
en
French
 - 
fr
German
 - 
de
Russian
 - 
ru
Turkish
 - 
tr
Bulgarian
 - 
bg

26 Години

Инвестираме в
изграждането на модерни
и нискоенергийни сгради.

0897 982 216 mait_eood@mail.bg

Жилищна сграда Zornitsa 2

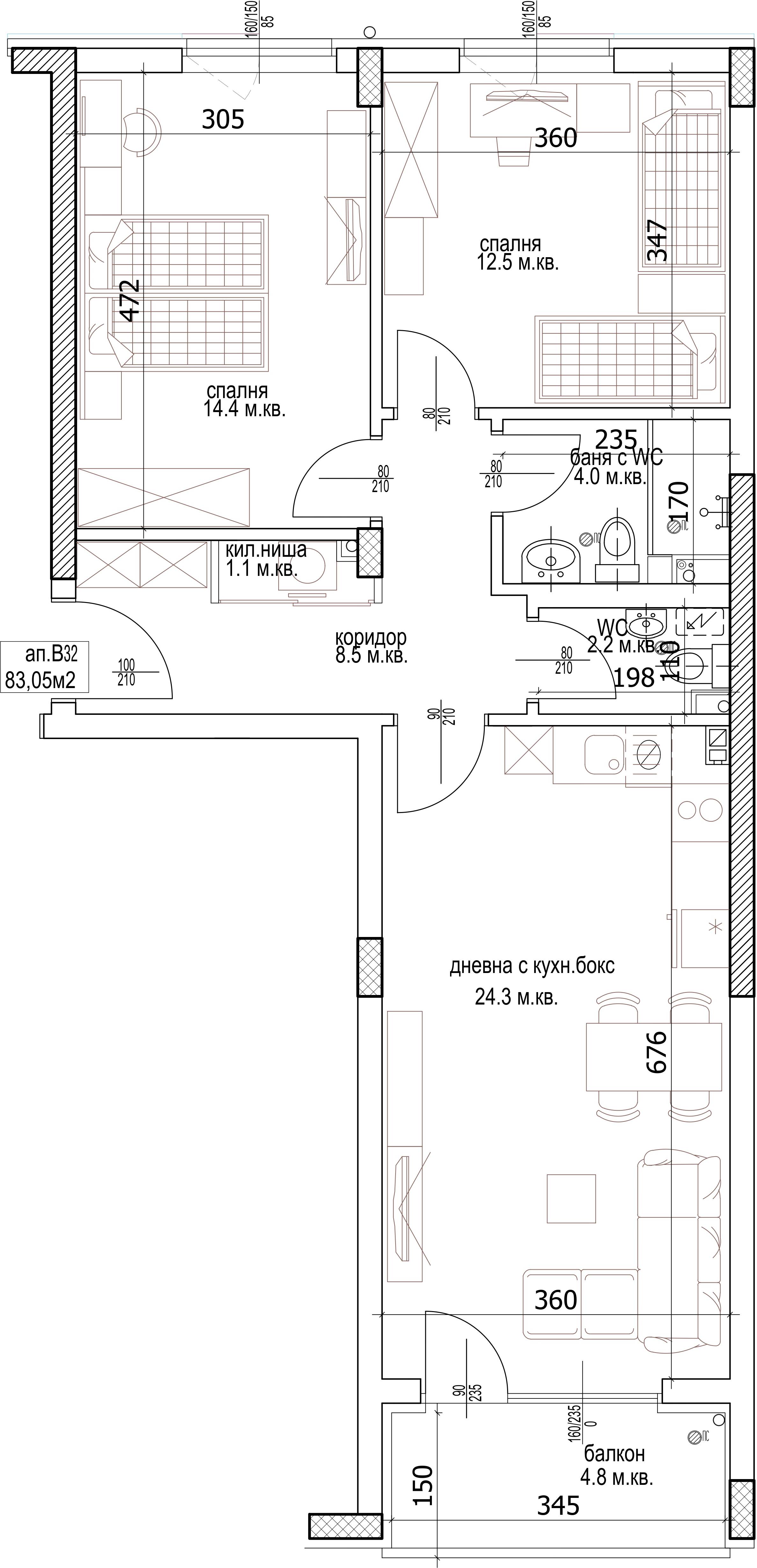
Етаж 9 / В - 32
В-32
Тип Тристаен
Чиста площ 83.05 м2
Обща площ 97.42 м2
Етаж 9
Изложение: Юг-Север
Статус: Свободен

Описание

Апартамент – дневна с кухненски бокс, 2 спални, баня с тоалетна, тоалетна, килер, коридор и балкон.

Zornitsa 2
Жилищна сграда Zornitsa 2

Zornitsa 2 – хармония със зеленина и простор

Zornitsa 2 е замислена като спокойна и уютна жилищна среда, където архитектурата се вписва в естествената околност. Четирите входа са разпределени така, че да създадат функционална и подредена структура, подходяща за различни типове домакинства.

Акцентът е върху големите тераси, връзката с озеленените пространства и комфорта на ежедневието, което прави сградата предпочитан избор за хора, търсещи баланса между градска динамика и спокойствие.

168 Закрито Паркомясто
27 Открито Паркомясто
91 Двустаен Апартамент
55 Тристаен Апартамент
1 Четиристаен Апартамент
Zornitsa 2

ФАСАДА

Фасадата на Зорница 2 съчетава стилна визия и функционалност. Използвани са устойчиви материали в топли и светли тонове, които подчертават архитектурния ритъм и придават модерен облик. Просторните балкони и панорамни прозорци осигуряват максимална естествена светлина и връзка с околната среда.

Конструкцията

Конструкцията е изградена от стоманобетон с висока степен на здравина и надеждна топло- и шумоизолация. Сградата е проектирана да отговаря на всички актуални стандарти за сигурност и дългосрочна устойчивост.

Общите части

Общите пространства са оформени със стил и внимание към детайла – широки коридори, естествено осветление и подови настилки от висококачествени материали. Всяка зона е планирана така, че да осигурява комфорт и лесна ориентация на обитателите и техните гости.

АСАНСЬОР

Всеки от четирите входа е оборудван с модерен, безшумен асансьор, който осигурява директен достъп до всички етажи, включително подземните гаражи. Това улеснява ежедневието на живущите и гарантира удобство за семейства с деца и възрастни хора.

Покрив

Покривната система е проектирана като плосък покрив с надеждна хидроизолация и топлоизолация, осигуряващи енергийна ефективност и дълготрайна защита. Конструкцията е съобразена със съвременните климатични изисквания.

ВИК

Водоснабдителната и канализационна система е изградена от висококачествени тръби и фитинги, гарантиращи сигурност и оптимален дебит. Системата е проектирана за лесна поддръжка и дългогодишна надеждност.

Ел. инсталация

Електрическите инсталации са съобразени с най-новите стандарти за безопасност и удобство. Във всяко жилище са предвидени множество точки за захранване и възможност за интеграция на „смарт“ системи за управление на осветление, отопление и сигурност.

Подземен паркинг

Жителите на Зорница 2 разполагат с подземно ниво, където са организирани паркоместа и гаражи с директен достъп чрез асансьор.

Свободни Имоти в жилищна сграда Zornitsa 2

Тук можете да видите всички апартаменти в Жилищна сграда Zornitsa 2, можете да търсите като филтрирате по категории, да ги добавяте в любими както и да кликнете въху апартамента за подробна информация.

Тип Подтип Чиста площ Обща площ Етаж Изложение Статус Към имот
Апартамент, Тристаен Г - 32
Г - 32
Апартамент
Тристаен Апартамент
84.25 м2
98.83 м2
Етаж 9
Юг-Север
Свободен
Виж повече
Апартамент, Тристаен Г - 29
Г - 29
Апартамент
Тристаен Апартамент
83.05 м2
97.42 м2
Етаж 9
Юг-Север
Свободен
Виж повече
Апартамент, Тристаен В - 32
В - 32
Апартамент
Тристаен Апартамент
83.05 м2
97.42 м2
Етаж 9
Юг-Север
Свободен
Виж повече
Апартамент, Тристаен В - 29
В - 29
Апартамент
Тристаен Апартамент
84.25 м2
98.83 м2
Етаж 9
Юг-Север
Свободен
Виж повече
Апартамент, Двустаен Б - 47
Б - 47
Апартамент
Двустаен Апартамент
61.49 м2
72.13 м2
Етаж 9
Изток
Свободен
Виж повече
Апартамент, Тристаен Б - 45
Б - 45
Апартамент
Тристаен Апартамент
92.85 м2
108.92 м2
Етаж 9
Изток-Север
Свободен
Виж повече
Апартамент, Тристаен Б - 44
Б - 44
Апартамент
Тристаен Апартамент
81.42 м2
95.51 м2
Етаж 9
Юг-Север
Свободен
Виж повече
Апартамент, Двустаен Б - 43
Б - 43
Апартамент
Двустаен Апартамент
59.45 м2
69.74 м2
Етаж 9
Юг
Свободен
Виж повече

Къде се намира Zornitsa 2 ?

гр. Варна, Бул. Цар Освободител

+359 883 902 244

mait_eood@abv.bg

Варна 9000, ул.Лиляна Ставрева №6

Жилищна сграда Zornitsa 2

гр. Варна, Бул. Цар Освободител
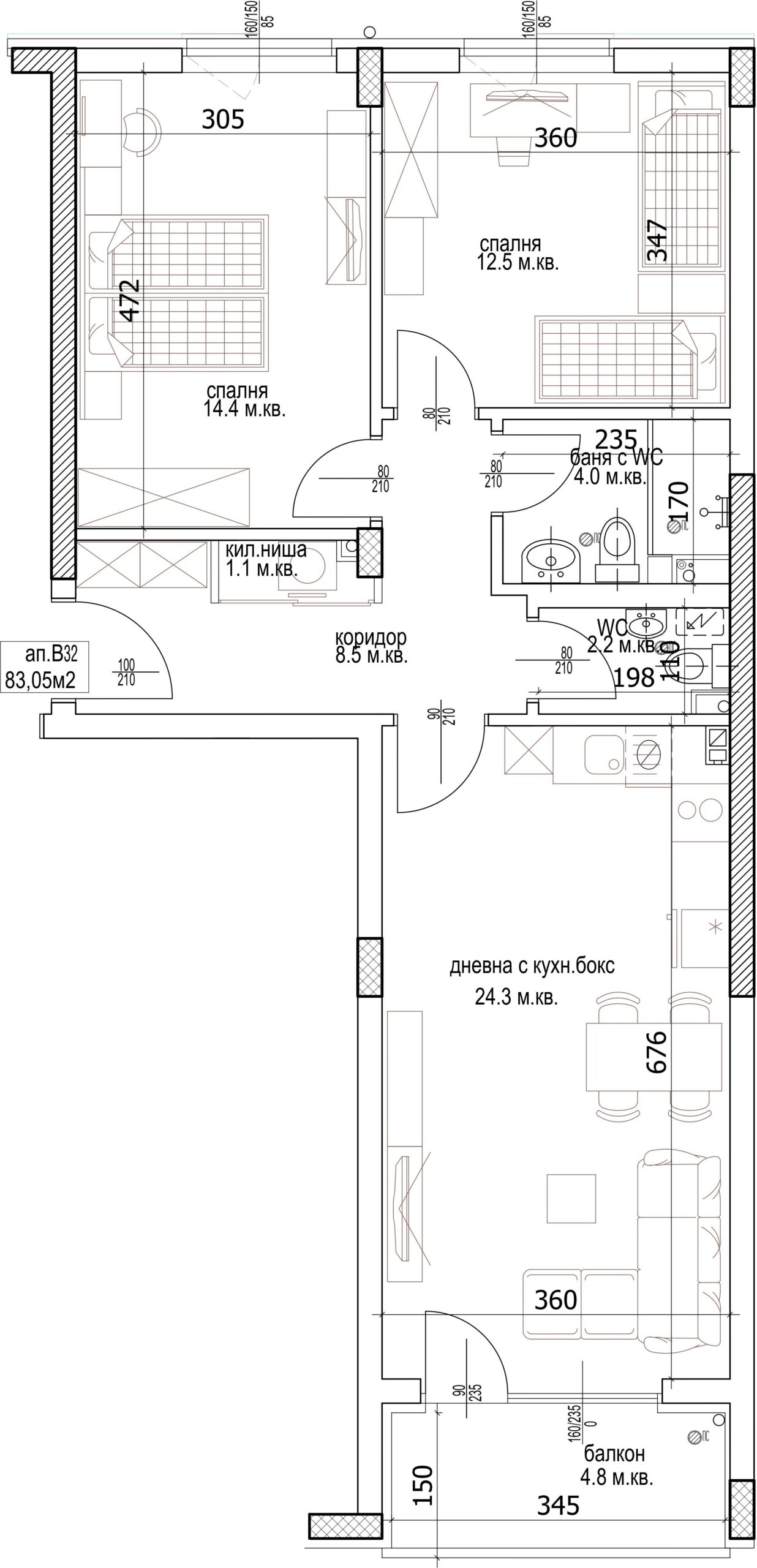
В - 32
Тип Тристаен
Чиста площ 83.05 м2
Обща площ 97.42 м2
Етаж 9
Изложение: Юг-Север
Статус: Свободен

Описание

Апартамент – дневна с кухненски бокс, 2 спални, баня с тоалетна, тоалетна, килер, коридор и балкон.

Жилищна сграда Zornitsa 2
Изработка и дизайн
Проекти 27
Търсене на имот:
355 имота в
продажба
0897 982 216