Жилищна сграда Zornitsa 1
- Майт ЕООД
- Проекти
- Жилищна сграда Zornitsa 1
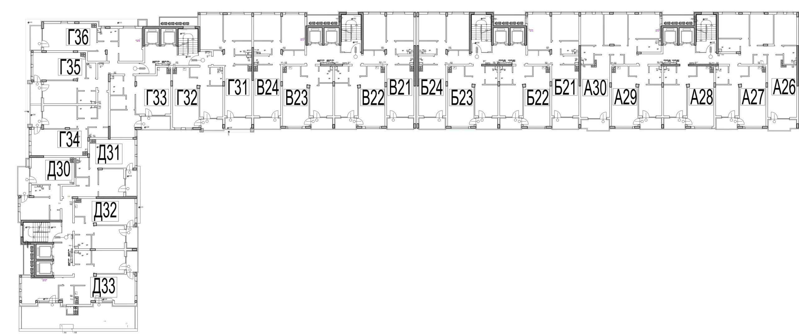
- Етаж 7
- Апартамент Г - 36
Описание
Апартамент – дневна с кухненски бокс, спалня, баня с тоалетна, килер, коридор и балкон.
Zornitsa 1 – динамична визия и съвременен комфорт
Зорница 1 впечатлява с модерна архитектура и ясно подчертан градски характер. Със своите пет входа тя предлага разнообразие от жилища, обединени в хармонична композиция.
Балансът между функционалност и естетика създава усещане за простор и удобство, а правилно ориентираните апартаменти гарантират отлична осветеност и комфорт през всички сезони.
ФАСАДА
Фасадата на сградата е изградена с комбинация от модерни материали, които осигуряват енергийна ефективност и устойчивост. Контрастът между топли и неутрални тонове създава естетически баланс, а широките балкони и големите прозорци осигуряват максимална светлина във всеки апартамент.
Конструкцията
Зорница 1 е изградена по съвременни инженерни стандарти с армирани бетонни елементи и надеждна изолационна система. Конструкцията гарантира стабилност, дълготрайност и защита при всякакви климатични условия.
Общите части
Входовете и коридорите са проектирани с мисъл за удобството на обитателите – просторни стълбища, добре осветени зони и използвани висококачествени материали. Общите части носят усещане за завършеност и създават комфортна жилищна среда.
АСАНСЬОР
Всеки вход разполага със съвременен асансьор, който осигурява лесен и безшумен достъп до всички етажи, включително подземните гаражи. Това гарантира удобство както за семейства с деца, така и за хора с намалена подвижност.
Покрив
Покривът на сградата е плосък и изпълнен с висок клас хидро- и топлоизолация, отговарящ на актуалните енергийни стандарти. Решението осигурява защита и ефективност през цялата година.
ВИК
ВиК инсталацията е изградена от материали с доказано качество, които гарантират надеждност и оптимално налягане във всеки момент. Системата е проектирана така, че да осигурява лесна поддръжка и дългосрочна издръжливост.
Ел. инсталация
Сградата е оборудвана с модерни електроинсталации и предвидена възможност за интегриране на „умен дом“ решения. Всички апартаменти разполагат с достатъчно точки за захранване и сигурни ел. табла, отговарящи на най-новите стандарти.
Подземен паркинг
На разположение на собствениците е подземен паркинг с гаражи и паркоместа, достъпни директно чрез асансьорите на сградата.
Свободни Имоти в жилищна сграда Zornitsa 1
Тук можете да видите всички апартаменти в Жилищна сграда Zornitsa 1, можете да търсите като филтрирате по категории, да ги добавяте в любими както и да кликнете въху апартамента за подробна информация.
Zornitsa 1 галерия.
Къде се намира Zornitsa 1 ?
гр. Варна, Бул. Цар Освободител+359 883 902 244
mait_eood@abv.bg
Варна 9000, ул.Лиляна Ставрева №6
Жилищна сграда Zornitsa 1
гр. Варна, Бул. Цар Освободител
Описание
Апартамент – дневна с кухненски бокс, спалня, баня с тоалетна, килер, коридор и балкон.