Жилищна сграда Zornitsa 2
- Майт ЕООД
- Проекти
- Жилищна сграда Zornitsa 2
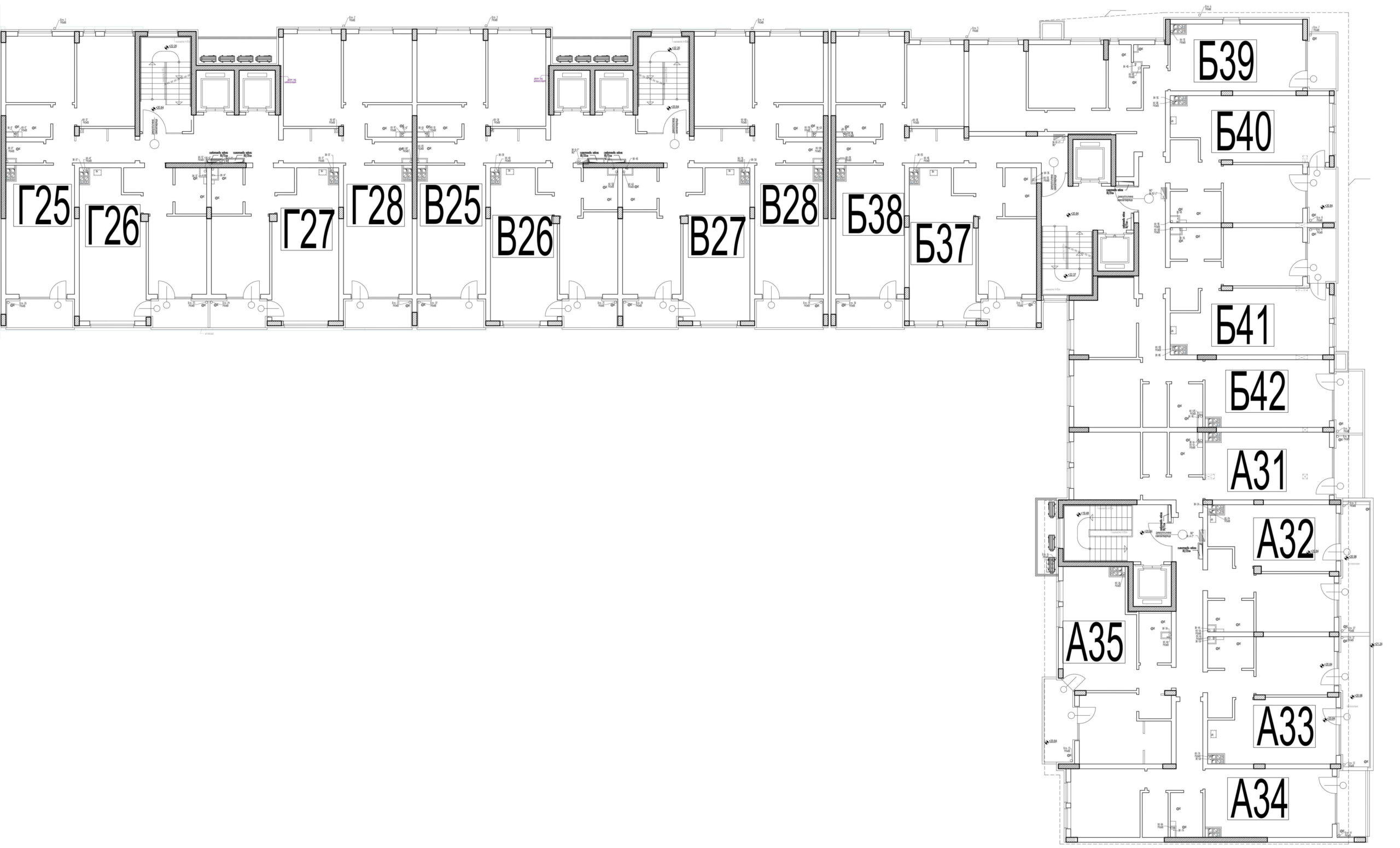
- Етаж 8
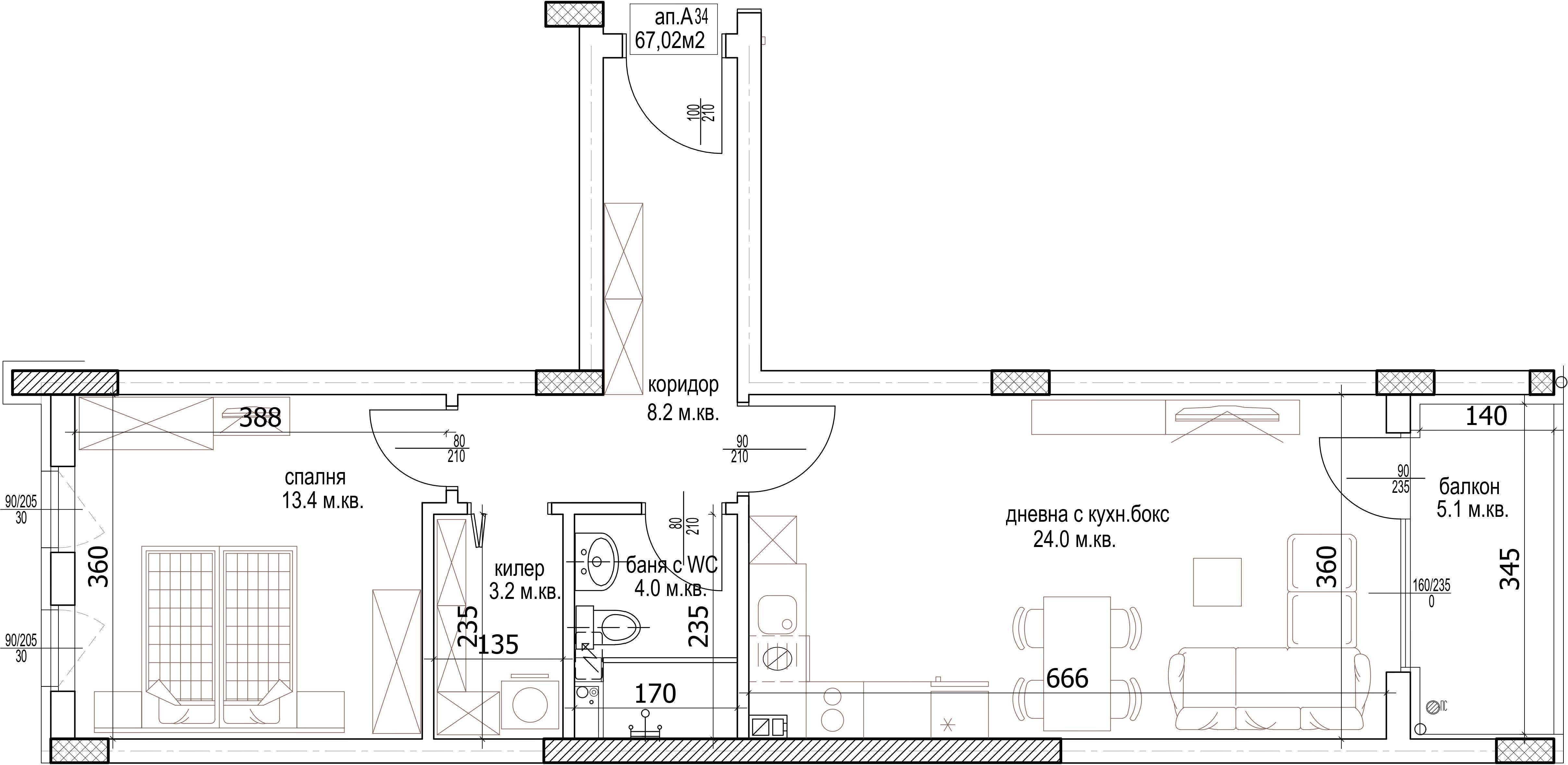
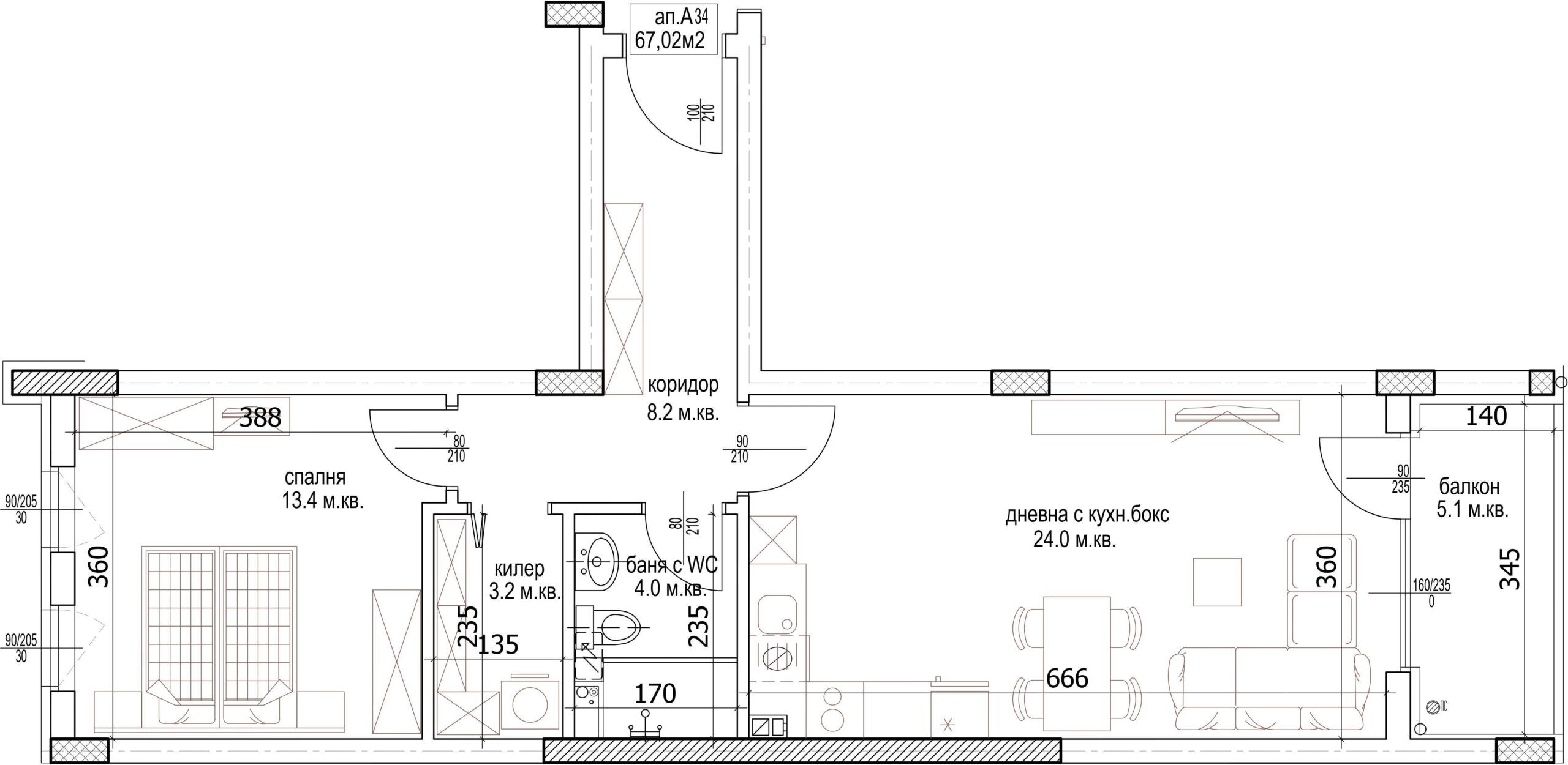
- Апартамент А - 34
Описание
Апартамент – днесна с кухненски бокс, спалня, баня с тоалетна, килер, коридор и балкон.
Zornitsa 2 – хармония със зеленина и простор
Zornitsa 2 е замислена като спокойна и уютна жилищна среда, където архитектурата се вписва в естествената околност. Четирите входа са разпределени така, че да създадат функционална и подредена структура, подходяща за различни типове домакинства.
Акцентът е върху големите тераси, връзката с озеленените пространства и комфорта на ежедневието, което прави сградата предпочитан избор за хора, търсещи баланса между градска динамика и спокойствие.
ФАСАДА
Фасадата на Зорница 2 съчетава стилна визия и функционалност. Използвани са устойчиви материали в топли и светли тонове, които подчертават архитектурния ритъм и придават модерен облик. Просторните балкони и панорамни прозорци осигуряват максимална естествена светлина и връзка с околната среда.
Конструкцията
Конструкцията е изградена от стоманобетон с висока степен на здравина и надеждна топло- и шумоизолация. Сградата е проектирана да отговаря на всички актуални стандарти за сигурност и дългосрочна устойчивост.
Общите части
Общите пространства са оформени със стил и внимание към детайла – широки коридори, естествено осветление и подови настилки от висококачествени материали. Всяка зона е планирана така, че да осигурява комфорт и лесна ориентация на обитателите и техните гости.
АСАНСЬОР
Всеки от четирите входа е оборудван с модерен, безшумен асансьор, който осигурява директен достъп до всички етажи, включително подземните гаражи. Това улеснява ежедневието на живущите и гарантира удобство за семейства с деца и възрастни хора.
Покрив
Покривната система е проектирана като плосък покрив с надеждна хидроизолация и топлоизолация, осигуряващи енергийна ефективност и дълготрайна защита. Конструкцията е съобразена със съвременните климатични изисквания.
ВИК
Водоснабдителната и канализационна система е изградена от висококачествени тръби и фитинги, гарантиращи сигурност и оптимален дебит. Системата е проектирана за лесна поддръжка и дългогодишна надеждност.
Ел. инсталация
Електрическите инсталации са съобразени с най-новите стандарти за безопасност и удобство. Във всяко жилище са предвидени множество точки за захранване и възможност за интеграция на „смарт“ системи за управление на осветление, отопление и сигурност.
Подземен паркинг
Жителите на Зорница 2 разполагат с подземно ниво, където са организирани паркоместа и гаражи с директен достъп чрез асансьор.
Свободни Имоти в жилищна сграда Zornitsa 2
Тук можете да видите всички апартаменти в Жилищна сграда Zornitsa 2, можете да търсите като филтрирате по категории, да ги добавяте в любими както и да кликнете въху апартамента за подробна информация.
Апартамент, Двустаен В - 26
Апартамент, Тристаен Б - 39
Апартамент, Двустаен А - 35
Апартамент, Двустаен А - 34
Апартамент, Двустаен А - 33
Zornitsa 2 галерия.
Къде се намира Zornitsa 2 ?
гр. Варна, Бул. Цар Освободител+359 883 902 244
mait_eood@abv.bg
Варна 9000, ул.Лиляна Ставрева №6
Жилищна сграда Zornitsa 2
гр. Варна, Бул. Цар Освободител
Описание
Апартамент – днесна с кухненски бокс, спалня, баня с тоалетна, килер, коридор и балкон.